Skip to main content
Skip table of contents

Certified Payroll

The Certified Payroll report lists employee information, details of hours worked, hourly rate, gross earned in job, deductions, and net weekly pay for the selected jobs and service calls. To print accurate certified payroll reports, you must print your payroll checks using the Microsoft Dynamics GP Payroll module.

Some features include:

  • Cash fringe is broken out separately, making it easier to locate
  • Can select to include service calls (Service Management required)
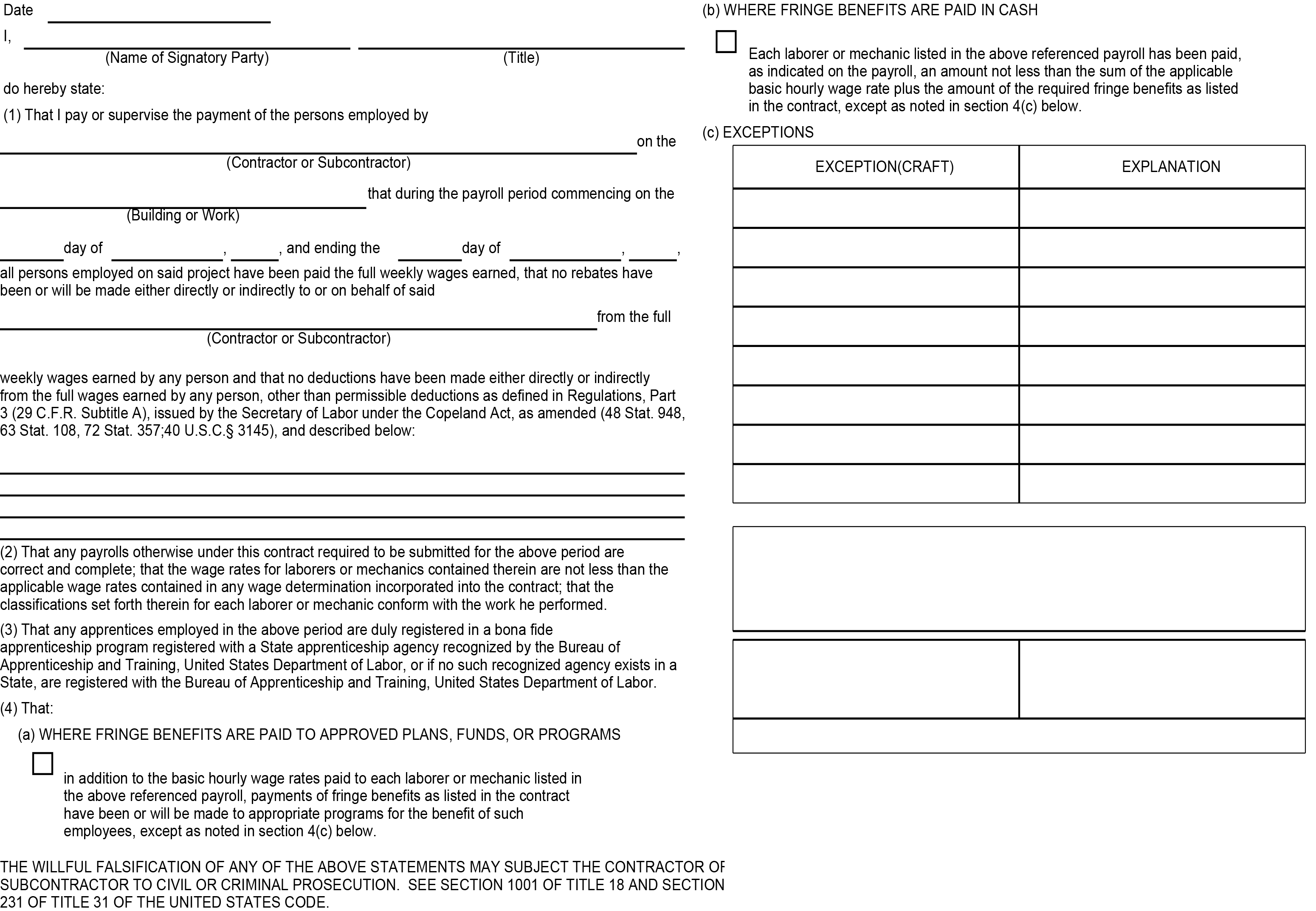
  • Prints the statement of compliance page of the report
  • Prints totals by job or service call
  • Prints header information, such as address, contractor name, and week-ending date, eliminating the need for a cover page.

Certified Payroll Setup Options

  • TimeTrack: In TimeTrack Setup Options, you must mark Maintain History. See Using TimeTrack History.
  • Job Cost: In Job Cost Posting Options, mark Certified Payroll in the Payroll Section. See Choosing Posting Options. Marking this checkbox enables the Certified Payroll checkbox on the Job Maintenance window. See Creating a Job Record.
  • Service Management
    • There are no setup options in Service Management.
    • Service calls cannot be identified in the Service Call window to be included in the report.
    • When printing the Certified Payroll report, use the Start Service Call and End Service Call filters to select the service calls to be included in the report.

Printing the Certified Payroll Report

  • In Job Cost, you can run this report from Reports > Job Cost > Labor Reports > Certified Payroll.
  • In Service Management, you must run this report using the SRS Report Manager.

JavaScript errors detected

Please note, these errors can depend on your browser setup.

If this problem persists, please contact our support.